【中古戸建】
大和市代官1丁目
小田急江ノ島線「桜ヶ丘」駅 徒歩17分
又は「高座渋谷」駅 徒歩19分

駐車らくらく並列3台分! 南西側隣地は駐車場のため開放的!
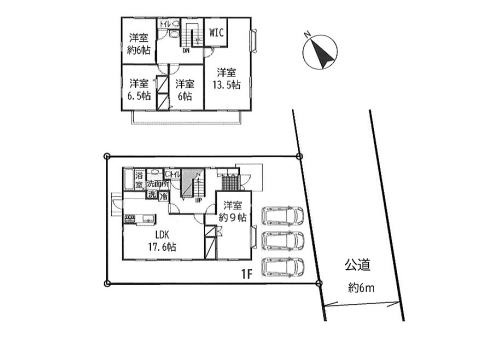
LDK 対面キッチン 1F 洋室

2F 洋室 1F 洗面台 浴室 トイレ

価格:5,000万円 → 4,600万円(非課税)
◎52坪超の広々とした敷地!
◎駐車並列3台分!
◎耐久性の高い軽量鉄骨造の家!
◎希少な5LDK!
◎WIC・納戸付き!
◎徒歩圏にスーパーやコンビニ等あり!
◎二世帯住宅としてもご検討いただけます!
<物件概要>
■所在地/大和市代官1-19-3 ■土地権利/所有権 ■地目/宅地
■用途地域/第1種低層住居専用地域 ■建ぺい率/50% ■容積率/100%
■土地面積172.27㎡(52.11坪) ■建物面積/146.16㎡(44.21坪)
■構造・規模/軽量鉄骨造2階建 ■築年月/1998年2月築 ■現況/空家
■その他/準防火地域・景観法・航空法 ■設備/公営水道・公共下水・都市ガス
■接道/南東側幅員約6m公道に約10.65m接道 ■引渡/相談
■備考/契約不適合責任免責・令和5年リフォーム済・令和7円内装再リフォーム済
■取引態様/一般媒介
※図面と現況が異なる場合には、現況を優先させていただきます。
【学 区】
福 田小学校 徒歩6分
引地台中学校 徒歩26分
◎モミヤマ幼稚園 徒歩5分
◎ミニストップ 徒歩5分
◎ファミリーマート 徒歩5分
◎クリエイトSD 徒歩11分
◎イオン 徒歩16分
◎いなげや 徒歩16分
◎おふろの王様 徒歩18分
◎内見ご予約受付中です!
◎資料請求など、お気軽にご連絡ください!
TEL:0467-71-6211
<取引態様:一般媒介>
※現況と上記内容が異なる場合には、現況を優先させていただきます。
※万一売却済みの場合にはご了承ください。
|